仿古建筑改造,瓦園
院子位于后海南沿以南,恭王府以北的小翔鳳胡同內,距離后海不足百米,***初為一座廢棄的院落,格局較好,建筑外觀也不是很破敗,有正房和西廂房各一座,東側是一個后期加建的廚房。
▼ 庭院日景 - 沈楨
▼ 庭院日景 - 沈楨
院子入口右側是一顆大樹,只要踏入院門,在“她”的庇護下,就再無后海的熙熙攘攘,立馬墜入一方靜謐的氛圍中,加之房屋色調濃重,一種厚重的歷史感便油然而生。
▼ 庭院日景 - 沈楨
我們決定不破壞院子的基本格局,而通過一種有限度的設計與介入實現空間的重構與功能的轉換,更重要的是延續歷史感的同時挖掘出其潛在的文化價值。
▼ 從西廂房望向庭院 - 沈楨
▼ 庭院夜景 - 許小東
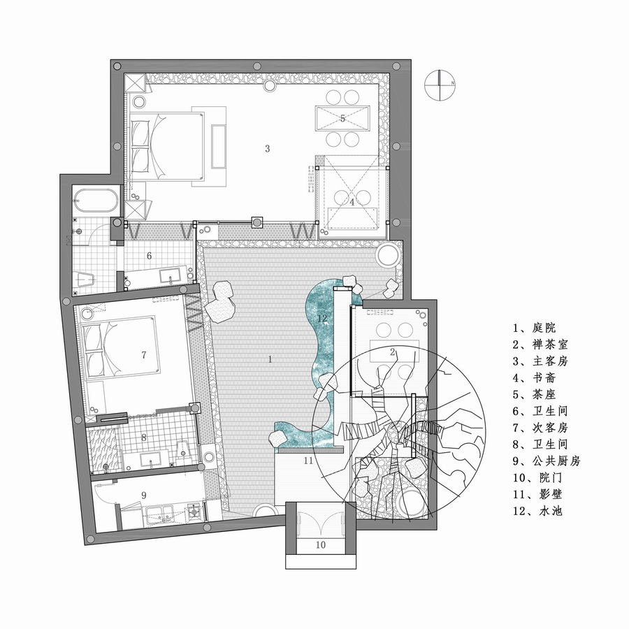
改造后的小院包括兩套客房、一間公共廚房和一間禪茶室(拆舊建新)。外立面除加建部分外延續了原初房屋的色彩與細部做法。將原先的窗型、窗臺等元素拆解、分配與重組,與新的肌理混合構成新的建筑立面。
▼ 改造后平面圖
▼ 軸測圖
▼ 庭院日景 - 沈楨
小院中大樹與茶室的媾和形成全院的核心,通過一個連續轉折的形體將入口、茶室與大樹等要素整合在一起,形成玄關、東南角樹院和茶室空間,選擇銹蝕鋼板和防腐木板兩種本身帶有時間沉淀感的材料與建筑主體在色彩與氣氛上相契合,是新與舊的融合,并以一個透明與儀式性的姿態言說了一種不同于西方街道廣場式的「庭院公共生活」:一種以親近自然為主旨的公共生活。
▼ 大樹與茶室的媾和 - 沈楨
▼ 樹院 - 許小東
▼ 從入口玄關望向樹院 - 許小東
▼ 從樹院望向茶室 - 許小東
▼ 方案圖
▼ 方案圖
結廬在人境,而無車馬喧。中國古人造園到了明清時期的核心思想就是在市井咫尺間營造山林,這也是士大夫階層在應對紛亂現世中暫時獲得身心放松與閑適的避風港,向往自然本就是我們心靈深層二元價值的一個方面,對人們的心智起到很好的調節作用。只是商業社會的標準化與快節奏讓我們逐漸疏離了自然,也慢慢喪失了這種調節機制。
▼ 茶室內景 - 許小東
▼ 茶室內景 - 沈楨
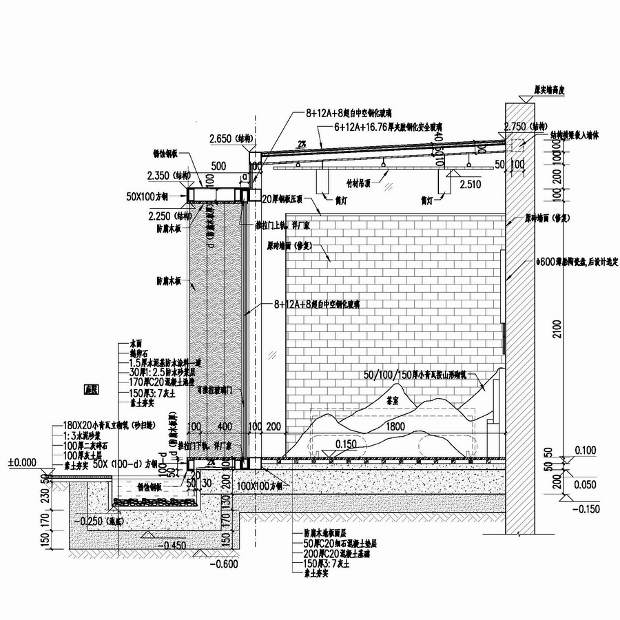
▼ 茶室構造詳圖
▼ 書齋 - 沈楨
▼ 細部 - 沈楨
▼ 細部 - 許小東
▼ 細部 - 沈楨
▼ 方案圖
▼ 書齋構造詳圖
庭院本身咫尺間,在有限的空間中通過梳理與整合并對「瓦」這種傳統材料的不同組織與定義于方寸間營造山水,觀想山水。改造后的小院本身成為這個城市中的一個「彼處」,它以一種異化的方式讓人們在這里忘卻現實生活中的紛擾而暫時回歸一種更加貼近自然的生活狀態,亦或是對心靈的慰藉也好,是為我們所期望的。
▼ 南正房室內 - 許小東
▼ 南正房書齋與飲茶區 - 許小東
▼ 南正房室內 - 許小東
▼ 南正房室內 - 許小東
▼ 南正房室內 - 許小東
▼ 南正房室內 - 沈楨
▼ 南正房室內 - 沈楨
▼ 西廂房室內 - 許小東
建筑如同器物,需要時間的滋養慢慢褪去燥氣,需要生活的潤飾慢慢煥發光澤。期待來年春暖花開、樹葉蔽日、池水充盈、苔蘚叢生的日子,到那時,應該會是另一番景象了。
▼ 庭院夜景 - 許小東
項目信息:
建筑師:平常建筑
地址:后海小翔鳳胡同15號院,北京,中國
類別:酒店
主創建筑師:沈楨,陳貞貞
建筑面積:117.0 平方米
項目年份:2018
攝影師:許小東, 沈楨
業主:北京天恒自在場頭(隱海)
材料:小青瓦、清水磚、鋼材、銹蝕鋼板、木材、竹、玻璃等
©版權聲明 本文來自 ArchitectureDaily
標題:仿古建筑改造,瓦園,地址:http://www.luqxinwen.com/baike/618.html
同類文章推薦
- 合成樹脂瓦的使用壽命到底是多久?
- 合成樹脂瓦廠家坤寶建材新增6條全自動生產線
- 農村別墅屋面瓦選擇-合成樹脂瓦!
- 夏天樹脂瓦為它降溫——「破,爛,跨」的動物救助基地。
- “新品”「塑料一體仿古屋檐瓦」屋檐上的藝術成都坤寶
- 合成樹脂瓦好壞的內情!你學會判別了嗎?還要持續受騙嗎?
- 合成樹脂瓦廠家之坤寶建材——桃花溝游記
- 合成樹脂瓦,顏色越鮮艷越好嗎?
- 樹脂瓦的顏色會褪色嗎?那種顏色可以?
屋面瓦問題錦集
- 樹脂瓦價格多少一平方
- 樹脂瓦廠家直銷多少錢
- 陶瓷瓦和樹脂瓦的使用壽命
- 樹脂瓦的隔熱效果如何,價格多少
- 樹脂瓦好嗎?價格多少一平米
- 樹脂瓦一般有幾種顏色
- 瓦片有幾種,瓦片有哪幾種圖片
- 樹脂瓦為什么容易裂?
- 樹脂瓦為什么容易漏水
- 樹脂瓦一米有多重_三毫米樹脂瓦每平米多重












































